Talisman Court: Residential Development

14. no Apartments & 270 sqm of Retail Space

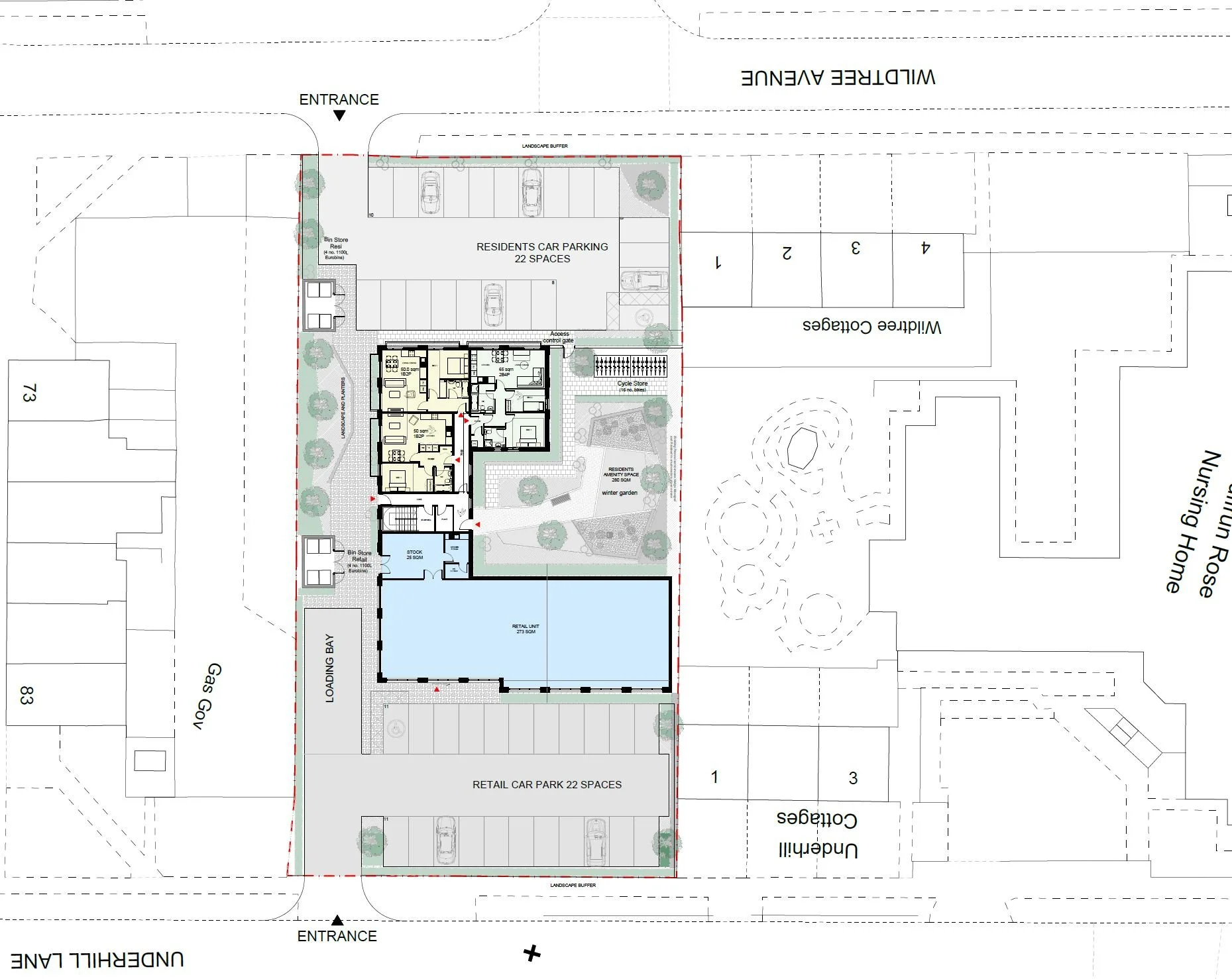
Wildtree Avenue, Wolverhampton

A new residential development with 14 units and a commercial unit at ground floor. This proposed development will create employment opportunities and accommodation in the area for residents at a site which was previously a Public House at Wildtree Avenue, Wolverhampton.

The scheme has recently been submitted for Full Planning in April 2023 and is currently under consultation

The project services involved the following services:

  • Feasibility and Pre-Planning

  • Planning

  • Landscape Design

  • 3D Modelling

Previous
Previous

Charles Street

Next
Next

Shivalika House